Haute 100 New York Updates: Andre Balazs Proposes Changes for Standard East Village
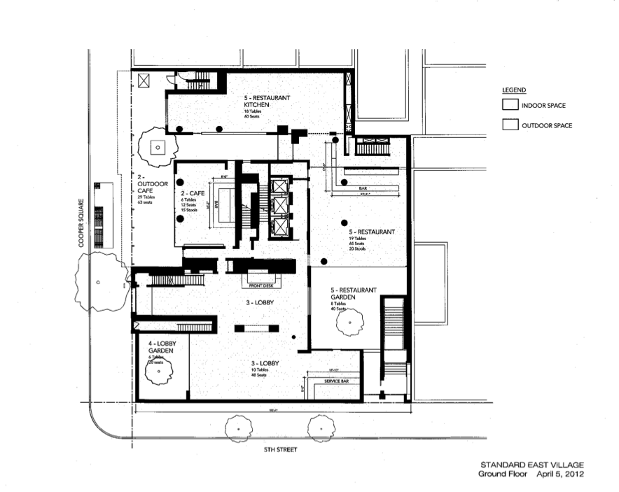
The Standard East Village is on Monday night’s CB3/SLA agenda to review proposed changes by owner and Haute 100 lister Andre Balazs. If the changes are accepted then the hotel, in the process of development, will undergo some major changes.
Related Articles
Inside the Most Exclusive Experience of Miami Race Week: Off Grid Redefines Trackside Hospitality at the 2026 Miami Grand Prix
Off Grid unveils an ultra exclusive trackside hospitality experience at the 2026 Miami Grand Prix, blending racing, luxury, and culture.
5 Simple Elements That Are Guaranteed to Enhance Any Home
Discover smart South Bend home improvement ideas to boost comfort, style, and value with simple upgrades for windows, kitchens, and more.
Inside the First AI Visibility Index for Medical Aesthetics: What ChatGPT, Claude, and Perplexity Are Really Telling the Luxury Patient
A new AI Visibility Index reveals how leading medical aesthetics brands dominate generative search across major AI platforms.
The Creator Alchemist: How Isabella Delgado is Redefining the Architecture of Influence
Turn influence into impact. Discover how Isabella Delgado engineers culturally resonant digital campaigns that connect, convert, and endure.
The Editor-Approved Handbag That Your Wardrobe is Missing
Isabel Marant’s Maia Bag is the editor-approved handbag that your wardrobe is missing.
First Look: JW Marriott Atlanta Downtown’s Wellness-Driven Design
JW Marriott Atlanta Downtown is bringing a new kind of luxury to downtown Atlanta – quieter, more intentional, and rooted in wellness. Opening this spring, the reimagined JW Marriott Atlanta Downtown will take over the former W Atlanta Downtown. The 237-room property, operated by Stonebridge and redesigned by Looney & Associates, is positioned as a more considered take […]
Latest Stories
Trending Articles
Related Articles
Inside the Most Exclusive Experience of Miami Race Week: Off Grid Redefines Trackside Hospitality at the 2026 Miami Grand Prix
Off Grid unveils an ultra exclusive trackside hospitality experience at the 2026 Miami Grand Prix, blending racing, luxury, and culture.
5 Simple Elements That Are Guaranteed to Enhance Any Home
Discover smart South Bend home improvement ideas to boost comfort, style, and value with simple upgrades for windows, kitchens, and more.
Inside the First AI Visibility Index for Medical Aesthetics: What ChatGPT, Claude, and Perplexity Are Really Telling the Luxury Patient
A new AI Visibility Index reveals how leading medical aesthetics brands dominate generative search across major AI platforms.
The Creator Alchemist: How Isabella Delgado is Redefining the Architecture of Influence
Turn influence into impact. Discover how Isabella Delgado engineers culturally resonant digital campaigns that connect, convert, and endure.
The Editor-Approved Handbag That Your Wardrobe is Missing
Isabel Marant’s Maia Bag is the editor-approved handbag that your wardrobe is missing.
First Look: JW Marriott Atlanta Downtown’s Wellness-Driven Design
JW Marriott Atlanta Downtown is bringing a new kind of luxury to downtown Atlanta – quieter, more intentional, and rooted in wellness. Opening this spring, the reimagined JW Marriott Atlanta Downtown will take over the former W Atlanta Downtown. The 237-room property, operated by Stonebridge and redesigned by Looney & Associates, is positioned as a more considered take […]
Subscribe to Haute Living
Receive Our Magazine Directly at Your Doorstep
Embark on a journey of luxury and elegance with Haute Living magazine. Subscribe now and have every issue conveniently delivered to your home. Experience the pinnacle of lifestyle, culture, and sophistication through our pages.
Haute Black Membership
Your Gateway to Extraordinary Experiences
Join Haute Black and unlock access to the world's most prestigious luxury events
